
Les gouttières de structure en acier sont un élément crucial du système de drainage du toit d'un bâtiment. Leur fonction principale est de collecter les eaux de pluie du toit, de la diriger vers les tuyaux verticaux, puis de le décharger dans le système de drainage extérieur, l'empêchant d'éroder directement les murs ou les fondations de trempage. La conception et l'installation des produits de Liweiyuan sont caractérisées par une résistance élevée et un poids léger, garantissant un drainage lisse et une durabilité exceptionnelle.
Les gouttières de structure en acier sont un élément crucial du système de drainage du toit d'un bâtiment. Leur fonction principale est de collecter les eaux de pluie du toit, de la diriger vers les tuyaux verticaux, puis de le décharger dans le système de drainage extérieur, l'empêchant d'éroder directement les murs ou les fondations de trempage. La conception et l'installation des produits de Liweiyuan sont caractérisées par une résistance élevée et un poids léger, garantissant un drainage lisse et une durabilité exceptionnelle.
La gouttière de la structure en acier de Liweiyuan est faite de matériaux résistants à la corrosion et résistants à l'impact.
Notre produit est galvanisé à chaud, offrant une excellente résistance à la corrosion, un faible coût et une longue durée de vie. Disponible en épaisseurs de 1,5-2,5 mm, il convient à la plupart des applications.
Fabriqué en acier inoxydable, ce produit offre une résistance à la corrosion et convient particulièrement aux environnements côtiers ou humides. Disponible en épaisseurs de 1,0-2,0 mm, il offre un prix plus élevé mais une longue durée de vie.
Nos produits en acier enrobés de couleur sont basés sur de l'acier galvanisé, recouvert d'un revêtement résistant aux intempéries, tels que le polyester ou le fluorocarbone, à la fois pour la résistance à la corrosion et les effets décoratifs. Disponibles en épaisseurs de 1,2-2,0 mm, elles sont adaptées aux bâtiments nécessitant un haut niveau d'attrait esthétique.
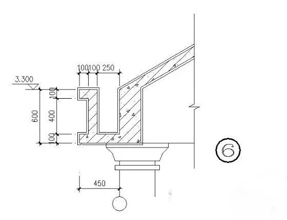
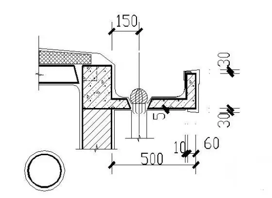
La forme structurelle de la gouttière de la structure en acier doit être adaptée à la pente du toit et à la conception des avant-toits. Les types communs incluent la forme en U et en forme de V. Le processus d'installation est le suivant:
Nos gouttières de structure en acier utilisent des supports de gouttières en acier à l'angle pour les fixer aux poutres ou Purlins de la structure en acier. L'espacement des supports est de 600-1000 mm pour assurer une répartition même des contraintes à travers la gouttière.
Les gouttières finies sont pré-dimensionnées et connectées sur place à l'aide de connecteurs ou de soudage. Le scellant est requis à la jonction entre la gouttière et le platelage du toit.
Nous pouvons installer un clignotement au-dessus du platelage du toit. L'extrémité inférieure de la gouttière doit être placée sous le platelage du toit et scellé avec un scellant. Des trous de vidange doivent être fournis au fond de la gouttière, principalement pour la connexion aux émeute des eaux de pluie.
Notre processus de fabrication de gouttières en acier comprend la coupe en fonction des dimensions de dessin, de la flexion, de la peinture, de l'inspection des produits finis, de l'emballage et de l'expédition. Les gouttières de structure en acier de Liweiyuan sont conçues et installées pour assurer une résistance à la corrosion, un drainage lisse et une durabilité, assurant un drainage efficace.