
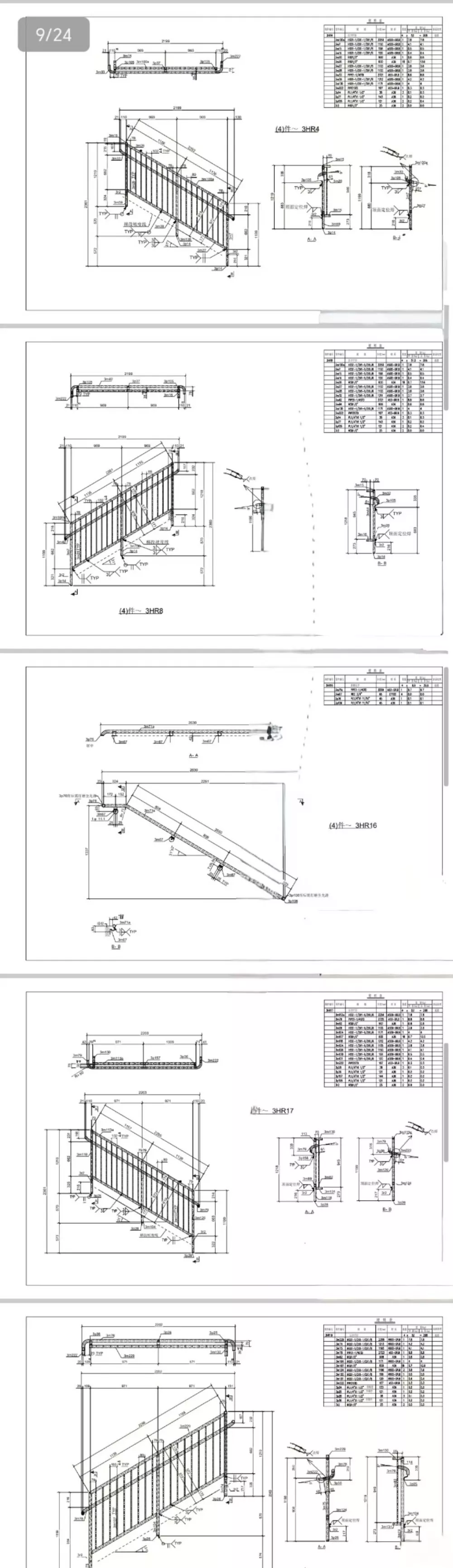
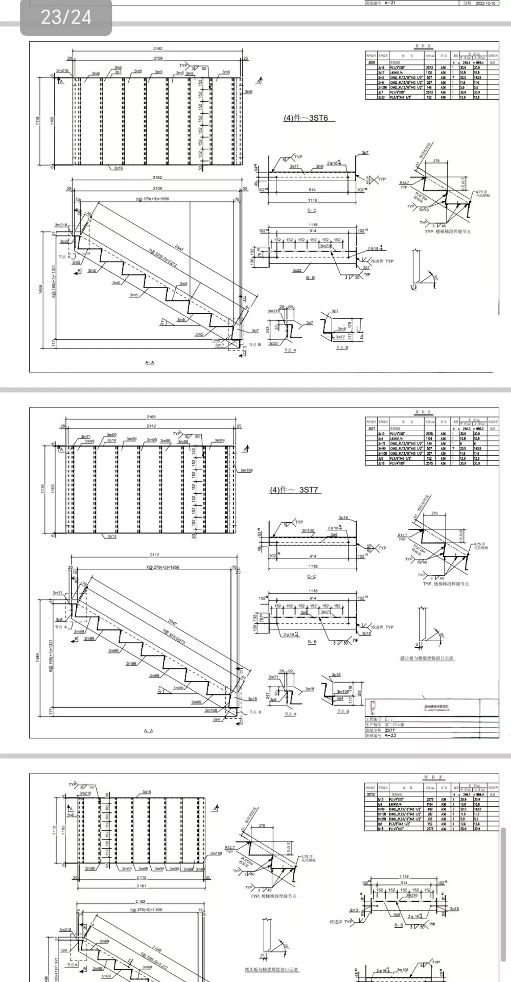
Les escaliers à structure métallique de Liweiyuan sont principalement fabriqués à partir d'acier profilé et de plaques d'acier, en utilisant des techniques de découpe et de soudage. Nos produits présentent un minimum de points d'appui et une capacité de charge élevée. Nous proposons une variété de styles d'escaliers et pouvons également les personnaliser selon vos besoins. N'hésitez pas à magasiner !
Les escaliers à structure métallique de Liweiyuan sont principalement fabriqués à partir d'acier profilé et de plaques d'acier, en utilisant des techniques de découpe et de soudage. Nos produits présentent un minimum de points d'appui et une capacité de charge élevée. Nous proposons une variété de styles d'escaliers et pouvons également les personnaliser selon vos besoins. N'hésitez pas à magasiner !



Les escaliers à structure métallique de Liweiyuan sont principalement utilisés dans les immeubles de grande hauteur, les installations industrielles et d'autres domaines. Nos produits sont fabriqués à partir de matières premières de haute qualité, chaque processus est strictement exécuté et chaque produit sera soumis à un contrôle de qualité avant de vous être livré.
1. Notre produit prend relativement peu de place et peut être conçu pour s'adapter à votre espace, ce qui le rend facile à installer.
2. C'est économique et rentable. Comparés aux escaliers en béton, nos escaliers sont plus rapides et plus faciles à installer et à construire, nécessitent moins de coffrage et coûtent seulement la moitié du prix.
3. Nous proposons une variété de modèles adaptés à votre environnement et au style souhaité.
4. Nous sommes très pratiques. Les marches d'escalier à structure métallique peuvent être constituées de matériaux tels que des plaques d'acier à motifs et des grilles en acier, et peuvent être personnalisées pour s'adapter à différents modèles de circulation, facilitant ainsi la montée et la descente des escaliers.

5. Nos escaliers sont personnalisables et comportent des traitements résistants à la corrosion tels que la galvanisation à chaud, la pulvérisation de plastique et la peinture. Ils peuvent également être personnalisés pour répondre aux besoins individuels des clients. Nous proposons une variété de matériaux, notamment A36, Q235B et Q355B.


Liweiyuan est une usine professionnelle de travail des métaux en Chine, équipée d'équipements de travail des métaux avancés, d'une équipe technique hautement qualifiée et de techniciens professionnels. Ajoutez une touche unique à votre bâtiment en choisissant les escaliers en acier Liweiyuan !